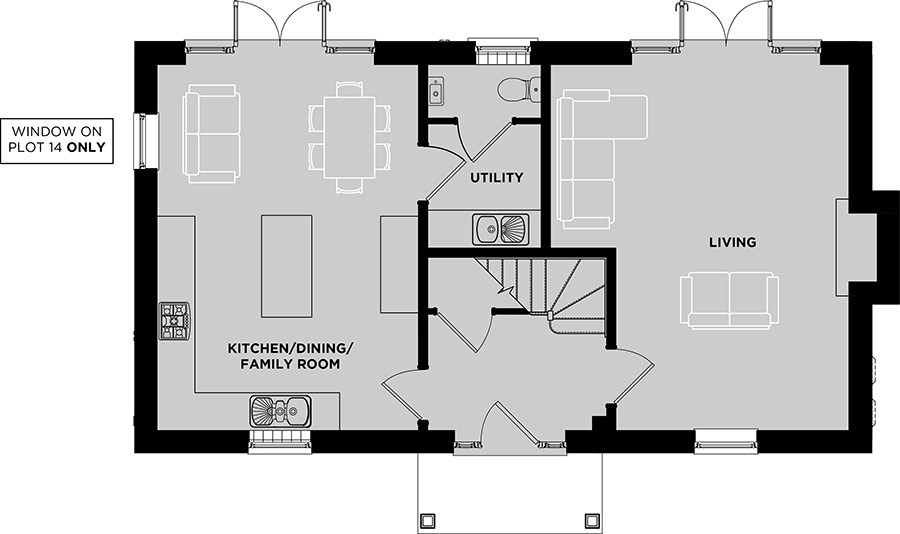
Kitchen/Dining/ Family Room:
5.815 x 4.175mm (19’ 1” x 13’ 8”)
Living:
5.815 x 4.740mm (19’ 1” x 15’ 7”)

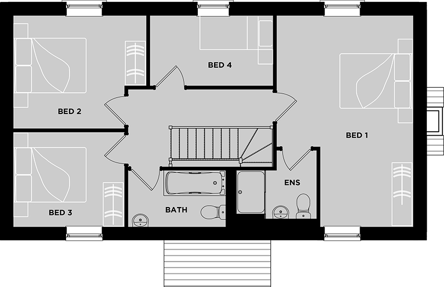
Bedroom 1:
5.815 x 3.757mm (19’ 1” x 12’4”)
Bedroom 2:
3.660 x 3.110mm (12’ 0” x 10’ 3”)
Bedroom 3:
3.060 x 2.612mm (10’ 1” x 8’ 7”)
Bedroom 4:
3.387 x 1.936mm (11’ 1” x 6’ 4”)
Total Floor Area:
1,375 sq ft


Individually designed kitchen with integrated features
30mm Quartz worktops and upstands with glass splashback to hob
AEG 800mm induction hob
AEG 600mm glass and stainless-steel extractor hood
AEG double oven
Rangemaster stainless-steel 1 ½ bowl sink with contemporary Monorise dual lever tap
Integrated dishwasher
Integrated frost free fridge freezer
Pan drawers below induction hob
Pull-out larder
Task lighting
Luxury vinyl tile flooring
Rangemaster stainless-steel single bowl sink with contemporary dual lever tap
40mm laminate worktops and upstands
Plumbing and electrics for washing machine/tumble dryer
Luxury vinyl tile flooring
Contemporary Roca white bathroom sanitaryware with semi-pedestal basins and chrome fittings
Thermostatic controlled mains feed shower above bath with glass screen (Bathrooms)
Thermostatic controlled mains feed shower over 1200x800mm shower tray (Ensuites)
Chrome towel rail
Full height tiling to bath and shower, half height elsewhere
Luxury vinyl flooring
Natural oak finished doors with brushed chrome ironmongery
High performance front doors with chrome fittings
LED downlights to kitchens, bathrooms and ensuites
CAT 5 data cabling from incoming fibre to lounge and master bedroom
Fibre optic cable into each property for ultra-fast internet connection
TV points to lounge and master bedroom suitable for terrestrial and satellite wired back to attic
External lighting to front and rear
Gas combination boiler
Walls and ceilings painted in white emulsion
Woodwork painted in white satin
Bike storage provided
10-year NHBC warranty
Car Port
Chimney flue provided for woodburner (Woodburner not included)
Block paving to drives
Turf and planting to front garden
Turf to rear garden
Outside tap to rear garden
Generous patio areas to rear gardens
Quality close-board timber boundary fencing
Predicted Energy Assessment rating A
High performance double-glazed windows
High performance insulation
Low energy lighting
Thermostatically controlled radiator valves
All properties air leak tested
Photo Voltaic panels