3
Sold
KITCHEN/LIVING/DINING
8.220 x 4.230mm (27’ 0” x 13’ 11”)

BEDROOM 1
4.450 x 4.230mm (14’ 7” x 13’ 11”)
BEDROOM 3
4.230 x 2.600mm (13’ 11” x 8’ 6”)

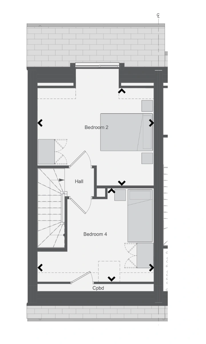
BEDROOM 2
4.230 x 3.150mm (13’11” x 10’’ 4”)
BEDROOM 4
4.230 x 3.060mm (13’11” x 10’ 0”)


KITCHEN
BATHROOM
FIXTURES & FITTINGS
LIGHTING & ELECTRICS
HEATING & HOT WATER
GENERAL
EXTERNALS
ENERGY EFFICIENCY FEATURES
ECOLOGICAL