4
Sold
KITCHEN/LIVING/DINING
7.200 x 4.170mm (23’ 8” x 13’ 8”)

BEDROOM 2
4.170 x 3.440mm (13’ 8” x 11’ 3”)
BEDROOM 3
4.170 x 2.600mm (13’ 8” x 8’ 6”)

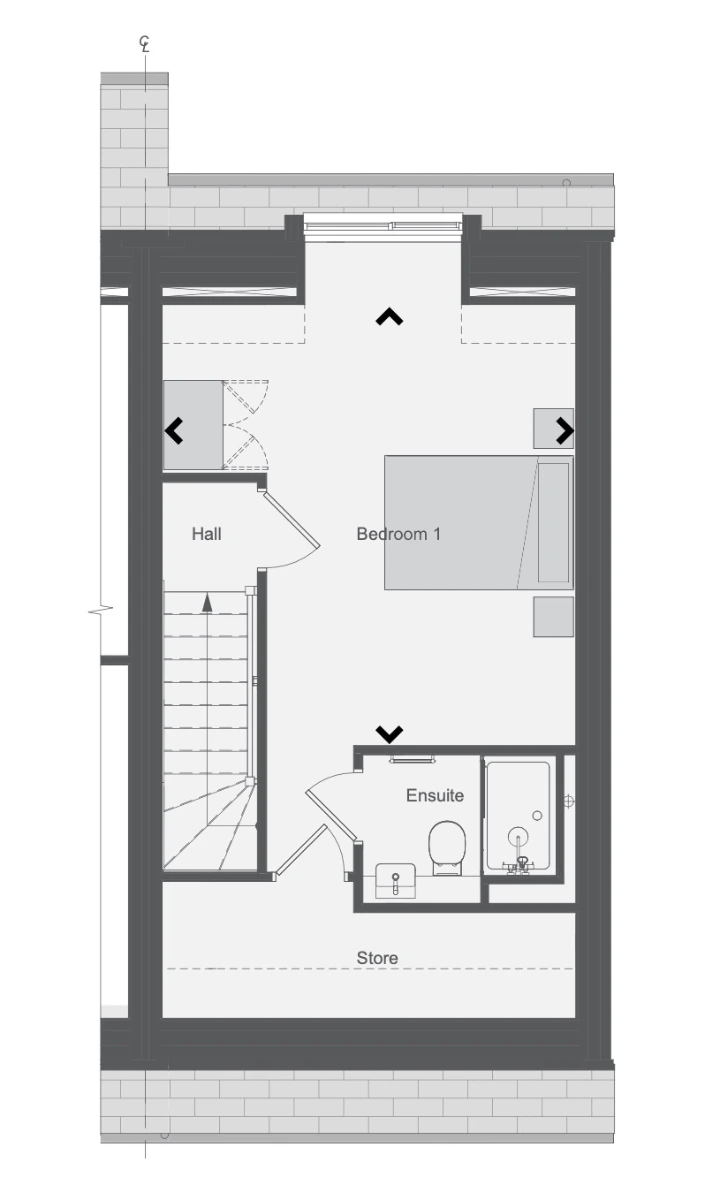
BEDROOM 1
5.330 x 4.170mm (17’ 6” x 13’ 8”)


KITCHEN
BATHROOM
FIXTURES & FITTINGS
LIGHTING & ELECTRICS
HEATING & HOT WATER
GENERAL
EXTERNALS
ENERGY EFFICIENCY FEATURES
ECOLOGICAL